Als Vertriebspartner für hochwertige Modulhäuser bieten wir durchdachte Wohnkonzepte, die durch modernes Design, nachhaltige Bauweise und flexible Grundrisse überzeugen. Unsere modularen Einheiten eignen sich für vielfältige Anwendungen – vom Ferienhaus über die Erweiterung Ihres Wohnraums bis hin zur professionellen Nutzung.
„Unser Leyman-Modulhaus ist der perfekte Rückzugsort für die Wochenenden. Die Qualität und das moderne Design haben uns begeistert – und der Aufbau war schneller, als wir gedacht hätten!“
„Als Unternehmer war ich auf der Suche nach flexiblen Unterkünften für mein Resort. Die Fertighäuser von Leyman bieten genau die Kombination aus Komfort, Nachhaltigkeit und Stil, die unsere Gäste schätzen.“
„Wir haben uns für ein NOELA-Modell entschieden und sind begeistert. Besonders gefällt uns die großzügige Terrasse und die hochwertige Ausstattung.“
Klare Linien, hochwertige Materialien und lichtdurchflutete Räume sorgen für ein unvergleichliches Wohngefühl.
Dank modularer Bauweise lassen sich unsere Modelle individuell anpassen – ob kompakt für Singles oder großzügig für Familien.
Unsere Modulhäuser werden mit energiesparenden Komponenten und langlebigen Materialien gefertigt. Das schont Umwelt und Geldbeutel.
Unsere modularen Häuser gibt es in verschiedenen Größen und Ausführungen. Wählen Sie das Modell, das am besten zu Ihren Anforderungen passt – ob als Ferienhaus, Gästebungalow oder dauerhafte Wohnlösung. Alle Modelle basieren auf einer robusten Leichtstahlkonstruktion und bieten optional erweiterbare Terrassen.
Modulhaus mit großzügiger Terrasse, offenem Wohn-/Essbereich und separatem Schlafzimmer.
Details
Modernes Modulhaus mit großer Terrasse und klar ausgerichteter Blickachse.
Details
Einstöckiges Modulhaus mit zwei Schlafzimmern und großem Wohn-/Essbereich.
Details
Bietet zwei Schlafzimmer und einen Wohn-/Essbereich mit integrierter Küche.
Details
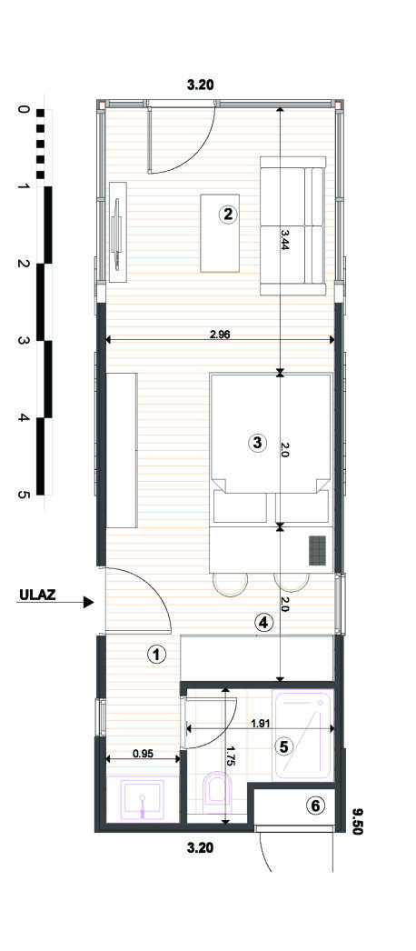
L-förmiges Modell mit großem Wohn-/Essbereich und separatem Schlafzimmer.
Details

NOA zeichnet sich durch minimalistisches Design und effiziente Raumnutzung aus. Mit einem offenen Wohn-/Schlafraum, Bad und Küchenzeile eignet es sich ideal für Urlauber, Singles oder Paare. Eine optionale Terrasse erweitert den Wohnbereich ins Freie.


ARIA kombiniert Großzügigkeit und Eleganz. Zwei Module bilden einen separaten Schlaftrakt sowie einen offen gestalteten Wohn-/Essbereich. Große Glasflächen und eine optional überdachte Terrasse schaffen ein luftiges Raumgefühl.


LEA bietet auf ca. 67 m² einen lichtdurchfluteten Wohn-/Essbereich und ein separates Schlafzimmer. Die großzügige Terrasse und die zum Garten orientierte Glasfront lassen die Innenräume eins mit der Umgebung werden.


NOELA nutzt vier Module, um zwei Schlafzimmer, einen großzügigen Wohn-/Essbereich und eine überdachte Terrasse zu kombinieren. Ideal für Familien oder als luxuriöses Ferienhaus mit maximaler Wohnqualität.


Auf nur ca. 37 m² bietet MILA einen funktionalen Wohn-/Kochbereich, ein Schlafzimmer und ein Bad. Die kompakte Grundfläche eignet sich perfekt für Mietparks, Tiny-House-Siedlungen oder kleine Privatprojekte.


ELARA ist das kleinste Modell und konzentriert sich auf das Wesentliche: einen offenen Wohn-/Ess-/Kochbereich mit integriertem Schlafbereich und ein komfortables Bad. Perfekt für Gäste, Singles oder micro-Living-Konzepte.


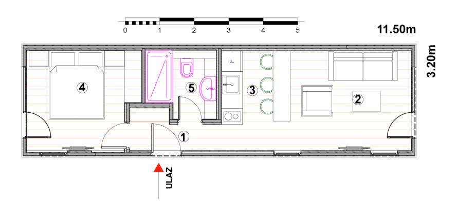
INA bietet zwei Schlafzimmer mit jeweils eigenem Bad sowie einen Wohn-/Ess-/Kochbereich. Ideal für Campingplätze und hochwertige Ferienanlagen.


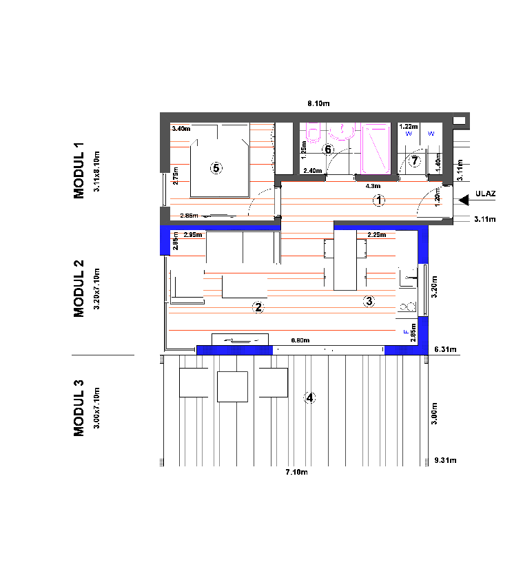
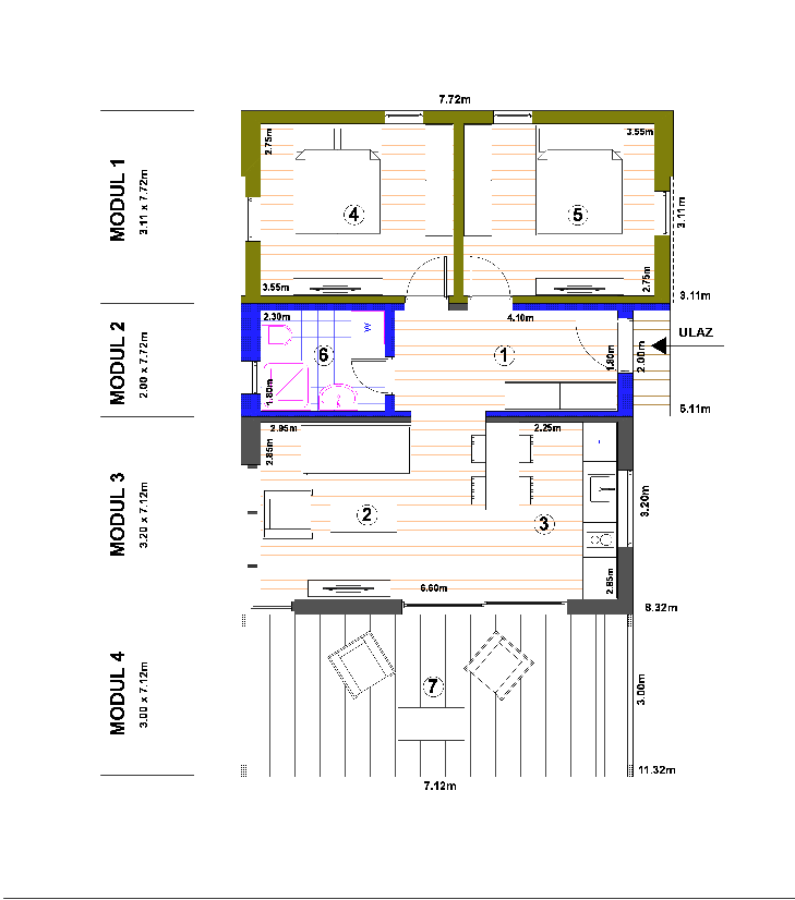
Großzügiges Modulhaus aus vier Modulen mit großer Terrasse, Eltern- und Kinderzimmern jeweils mit eigenem Bad sowie offenem Wohn-/Ess-/Kochbereich.


Modell mit L-förmigem Grundriss, großzügigem Wohn-/Ess-Bereich und separatem Schlafzimmer. Modernes Design mit viel Glas und einem einladenden Terrassenbereich.
Leyman GmbH ist Ihr kompetenter Ansprechpartner für moderne Modulhäuser. Unser Anspruch lautet: „Qualität, die lange hält. Stil, der anziehend ist.“ Als Vertriebspartner von VOS-SYSTEM d.o.o. vereinen wir deutsches Qualitätsbewusstsein mit innovativer Fertigung. Jede unserer Lösungen basiert auf einer feuerverzinkten Leichtstahlkonstruktion (LGS-Systembau), die Langlebigkeit und Stabilität gewährleistet.
In enger Zusammenarbeit mit erfahrenen Architekten und Ingenieuren entwickeln wir durchdachte Grundrisse, die sowohl funktional als auch ästhetisch überzeugen. Die modulare Bauweise ermöglicht kurze Aufbauzeiten und flexible Erweiterungsmöglichkeiten – ob als Ferienhaus, Anbau oder komplette Wohnlösung.
Nachhaltigkeit liegt uns am Herzen: Wir setzen auf energieeffiziente Materialien, optimale Dämmung und modernste Haustechnik. Zudem werden unsere Produkte regelmäßig von unabhängigen Prüfinstituten zertifiziert. So können Sie sicher sein, dass Ihr Modulhaus höchsten Qualitätsstandards entspricht.
Unsere Modulhäuser erfüllen die Anforderungen der ISO 9001:2015 und werden nach EN 1090 gefertigt. Als Partner von VOS-SYSTEM profitieren wir zudem von einer langjährigen Erfahrung im Stahlbau. Gemeinsam arbeiten wir kontinuierlich an der Weiterentwicklung unserer Produkte.
Sie haben Fragen zu unseren Modulhäusern oder wünschen ein individuelles Angebot? Kontaktieren Sie uns gern per E-Mail oder über das folgende Formular.
Adresse: Lessingstraße 1, 72119 Ammerbuch
E-Mail: info@leyman-gmbh.de
Web: www.leyman-gmbh.de
Mit dem Absenden dieses Formulars erklären Sie sich damit einverstanden, dass wir Ihre Angaben zur Beantwortung Ihrer Anfrage verwenden. Weitere Informationen finden Sie in unserer Datenschutzerklärung.
Angaben gemäß § 5 TMG
Leyman GmbH
Lessingstraße 1
72119 Ammerbuch
Deutschland
Vertreten durch
Geschäftsführer: Jan Ramac
Kontakt
Telefon: 0172 9929448
E-Mail: info@leyman-gmbh.de
Web: www.leyman-gmbh.de
Registereintrag
Eintragung im Handelsregister.
Registergericht: Amtsgericht Stuttgart
Registernummer: HRB 796400
Kapital
Stammkapital: 25.000 €
Umsatzsteuer-ID
Umsatzsteuer-Identifikationsnummer gemäß § 27 a UStG: DE370469207
Verantwortlich für den Inhalt nach § 55 Abs. 2 RStV
Jan Ramac
Lessingstraße 1
72119 Ammerbuch
Als Diensteanbieter sind wir gemäß § 7 Abs. 1 TMG für eigene Inhalte auf diesen Seiten nach den allgemeinen Gesetzen verantwortlich. Nach §§ 8 bis 10 TMG sind wir als Diensteanbieter jedoch nicht verpflichtet, übermittelte oder gespeicherte fremde Informationen zu überwachen oder nach Umständen zu forschen, die auf eine rechtswidrige Tätigkeit hinweisen. Verpflichtungen zur Entfernung oder Sperrung der Nutzung von Informationen nach den allgemeinen Gesetzen bleiben hiervon unberührt. Eine diesbezügliche Haftung ist jedoch erst ab dem Zeitpunkt der Kenntnis einer konkreten Rechtsverletzung möglich. Bei Bekanntwerden von entsprechenden Rechtsverletzungen werden wir diese Inhalte umgehend entfernen.
Unser Angebot enthält Links zu externen Webseiten Dritter, auf deren Inhalte wir keinen Einfluss haben. Deshalb können wir für diese fremden Inhalte auch keine Gewähr übernehmen. Für die Inhalte der verlinkten Seiten ist stets der jeweilige Anbieter oder Betreiber der Seiten verantwortlich. Die verlinkten Seiten wurden zum Zeitpunkt der Verlinkung auf mögliche Rechtsverstöße überprüft. Rechtswidrige Inhalte waren zum Zeitpunkt der Verlinkung nicht erkennbar. Eine permanente inhaltliche Kontrolle der verlinkten Seiten ist jedoch ohne konkrete Anhaltspunkte einer Rechtsverletzung nicht zumutbar. Bei Bekanntwerden von Rechtsverletzungen werden wir derartige Links umgehend entfernen.
Die durch die Seitenbetreiber erstellten Inhalte und Werke auf diesen Seiten unterliegen dem deutschen Urheberrecht. Die Vervielfältigung, Bearbeitung, Verbreitung und jede Art der Verwertung außerhalb der Grenzen des Urheberrechts bedürfen der schriftlichen Zustimmung des jeweiligen Autors bzw. Erstellers. Downloads und Kopien dieser Seite sind nur für den privaten, nicht kommerziellen Gebrauch gestattet. Soweit die Inhalte auf dieser Seite nicht vom Betreiber erstellt wurden, werden die Urheberrechte Dritter beachtet. Insbesondere werden Inhalte Dritter als solche gekennzeichnet. Sollten Sie trotzdem auf eine Urheberrechtsverletzung aufmerksam werden, bitten wir um einen entsprechenden Hinweis. Bei Bekanntwerden von Rechtsverletzungen werden wir derartige Inhalte umgehend entfernen.
Die Europäische Kommission stellt eine Plattform zur Online-Streitbeilegung (OS) bereit: https://ec.europa.eu/consumers/odr. Unsere E-Mail-Adresse finden Sie oben im Impressum. Wir sind nicht verpflichtet und nicht bereit, an Streitbeilegungsverfahren vor einer Verbraucherschlichtungsstelle teilzunehmen.
Der Schutz Ihrer persönlichen Daten ist uns ein besonderes Anliegen. Wir verarbeiten Ihre Daten daher ausschließlich auf Grundlage der gesetzlichen Bestimmungen (DSGVO, TMG). In dieser Datenschutzerklärung informieren wir Sie über die wichtigsten Aspekte der Datenverarbeitung im Rahmen unserer Website.
Verantwortliche Stelle im Sinne der Datenschutzgesetze ist:
Leyman GmbH
Lessingstraße 1
72119 Ammerbuch
E-Mail: info@leyman-gmbh.de
Telefon: 0172 9929448
Unsere Website dient ausschließlich der Bereitstellung von Informationen zu unseren Produkten und Leistungen. Beim Besuch unserer Website werden vom Hosting-Provider automatisch Informationen in sogenannten Server-Log-Files gespeichert, die Ihr Browser automatisch an uns übermittelt. Dies sind:
Diese Daten sind nicht bestimmten Personen zuordenbar und werden nicht mit anderen Datenquellen zusammengeführt. Sie dienen ausschließlich der Sicherstellung eines störungsfreien Betriebs und Verbesserung unserer Website und werden regelmäßig gelöscht.
Wenn Sie per E-Mail oder über ein Formular auf der Website Kontakt mit uns aufnehmen, werden Ihre angegebenen Daten zwecks Bearbeitung der Anfrage und für den Fall von Anschlussfragen bei uns gespeichert. Diese Daten geben wir nicht ohne Ihre Einwilligung weiter und verwenden sie nur, um Ihre Anfrage zu beantworten.
Unsere Website verwendet keine Cookies und setzt keine Tracking-Technologien ein. Externe Links und eingebettete Inhalte können jedoch eigene Cookies verwenden, auf die wir keinen Einfluss haben. Beim Besuch verlinkter Seiten gelten die Datenschutzbestimmungen des jeweiligen Betreibers.
Ihnen stehen hinsichtlich Ihrer bei uns gespeicherten Daten grundsätzlich die Rechte auf Auskunft, Berichtigung, Löschung, Einschränkung, Datenübertragbarkeit, Widerruf und Widerspruch zu. Wenn Sie der Meinung sind, dass die Verarbeitung Ihrer Daten gegen das Datenschutzrecht verstößt oder Ihre datenschutzrechtlichen Ansprüche sonst in einer Weise verletzt worden sind, können Sie sich bei der Aufsichtsbehörde beschweren. In Baden-Württemberg ist dies der Landesbeauftragte für den Datenschutz und die Informationsfreiheit Baden-Württemberg.
Wir behalten uns vor, diese Datenschutzerklärung gelegentlich anzupassen, damit sie stets den aktuellen rechtlichen Anforderungen entspricht oder um Änderungen unserer Leistungen in der Datenschutzerklärung umzusetzen. Für Ihren erneuten Besuch gilt dann die neue Datenschutzerklärung.